Your Choice of Two Stunning Brand New Homes!
You are spoilt for choice with this rare opportunity to secure one of two exceptionally designed residences! These executive Torrens Titled homes boast carefully considered floorplans featuring perfect natural flow from the expansive living areas to the outdoor entertaining area. Featuring fantastic street appeal and offering a luxurious lifestyle with quality fixtures and fittings throughout, these opulent homes are sure to impress families and first home buyers looking to get into the market and investors looking to add to their current portfolio.
Take advantage of the $15,000 First Home Owners Grant (Subject to terms and conditions).
Features that make 36 High Avenue special:
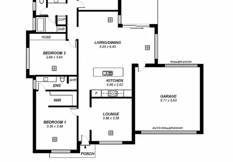
- Luxe master bedroom with large walk-in robe/cabinetry and sparkling ensuite
- Good sized bedrooms 2 and 3, both with large built-in robes
- Spacious open plan living area
- High quality stylish kitchen with Caesarstone benchtops, gas cooktop, stainless steel appliances, dishwasher, island bench and breakfast bar
- High ceilings throughout with Champagne Oak laminate flooring in living areas and lush quality carpet to all bedrooms.
- High clearance doors, modern square-set cornicing and high skirtings
- Large dining area
- Light-filled formal lounge room which could be used as a theatre or 4th Bedroom.
- Immaculate three-way main bathroom with separate bath and shower, with high quality porcelain floor to ceiling tiles
- Separate laundry with ample storage space
- Huge alfresco area built under the main roof, fully tiled and ideal for all year round outdoor entertaining
- Fully fenced, secure rear yard
- Double garage with automatic roller doors, direct internal entry and valuable drive through access to rear
Features that make 45 Ayredale Avenue special:
- Large master bedroom with walk-in robe and sparkling ensuite also offering floor to ceiling tiles and Caesarstone benches
- Good sized bedrooms 2 and 3, both with built-in robes
- Light-filled open plan living area
- Modern, stylish kitchen with Ceasarstone benchtops, dishwasher, walk-in pantry, island bench and breakfast bar
- Large walk-in pantry adjacent kitchen
- Spacious formal lounge room
- High ceilings throughout with Blackbutt laminate flooring in living areas and lush quality carpet to all bedrooms
- High clearance doors, modern square-set cornicing and high skirtings
- Main bathroom with separate bath and shower + separate toilet
- Separate laundry with ample storage space
- Alfresco also under the main roof, perfect for outdoor entertaining
- Double garage with automatic roller doors, direct internal entry and valuable drive through access to rear
Live in comfort with both properties offering ducted reverse cycle air-conditioning throughout and other extras such as fully landscaped gardens, concrete driveways, alarm system and so much more.
Located only 8.5kms (approximately) from the Adelaide CBD and only minutes away from multiple shopping options. In close proximity to parks, public transport options, sporting precincts and a variety of schools.
Inspection is a must!
For further information please contact Graeme Brown on 0455 111 996 or 8269 7711 (office).
**Please note photos are of 36 High Avenue and both homes will be Open for Inspection at the same time**
RLA 200591
