Symmetrical Bluestone Cottage with Endless Potential
Positioned on a large allotment of approximately 885sqm, this symmetrical bluestone cottage in a city fringe location offers endless opportunities. All the character features including high ceilings, polished floorboards, leadlight windows and feature fireplaces have been retained in the front section of the home. The North facing rear extension offers the potential to renovate or extend further (STCC) and has the opportunity to add significant value. This picture perfect home will appeal to families, young couples and astute investors.
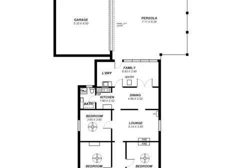
Features that make this home special:
- 3 good sized bedrooms, all with ceiling fans
- Large lounge with feature fireplace and split system air conditioner
- Neat and tidy kitchen with gas cooking
- Dining room adjacent kitchen
- North facing light filled family room with heater
- Functional bathroom
- Wooden floors throughout
- Expansive outdoor entertaining area
- Garden shed
- Low maintenance, fully fenced front and rear yard
- Double garage
Ideally situated only 4.7km (approximately) from the Adelaide CBD and located close to all amenities including all the restaurants, shopping and cafes that King William Road and Goodwood has to offer. A variety of highly sought after schools, parks, sporting clubs and public transport options are all nearby.
Do not miss this exciting opportunity!
For further information please contact Graeme Brown on 0455 111 791 or 8269 7711 (office).
RLA 265613
The Vendor's Statement (Form 1), the Auction Contract and the Conditions of Sale will be available for perusal by members of the public -
(A) at our office located at 434 Montague Road, Modbury North for at least 3 consecutive business days immediately preceding the auction; and
(B) at the place at which the auction is to be conducted for at least 30 minutes immediately before the auction commences.
