Brand New Stylish Designer Home
This brand new, stylish modern contemporary home set on a low maintenance corner allotment provides an outstanding lifestyle opportunity. Boasting a huge list of features, this is a home that will truly impress both the young professional with its close to city location and investors with fantastic rental return.
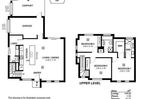
Features that make this home special:
Lower Level –
- Light filled open plan living and dining area
- Modern kitchen with gas cooktop, dishwasher and ample bench space including breakfast bar
- Separate laundry with built-in benchtop
- Separate w/c for your convenience
- Ducted air conditioning throughout
- Neutral decor
- Low maintenance front and rear yard
- Rainwater tank
- Double garage with automatic panel lift door, direct internal access and rear yard access
Upper Level –
- Master bedroom with walk-in robe and ensuite
- Spacious bedrooms 2 and 3, both with built-in robes
- Sparkling main bathroom with separate bath and shower
- Built-in cupboard for extra storage
Perfectly located only metres away from the open spaces of Lochiel Park Golf Course, Felixstow Reserve and Linear Park. Just minutes away from all facilities including the Newton Shopping Centre, local schools and public transport options including Paradise interchange. All of this and only 6.4km (approximately) to the Adelaide CBD.
Make the most of this area experiencing strong capital growth!
For further information please contact Mark Fricker on 0413 000 845 or 8269 7711 (office).
RLA 200591
DISCLAIMER: Nor the vendor or the agent accept any responsibility or make any guarantees in relation to any information included in this advertisement.
