Investors Dream or Entertainer's Delight!
Whether you're looking for an ideal family home with the big secure garden or potential for development, it's all here. This well-maintained double brick family home is set amongst other quality homes on large residential blocks and represents genuine value. Situated on a large 643sqm (approximate) allotment, this rare find is set in a prime location within close proximity to all amenities and with an eye for further development (Subject to Council Consent).
This opportunity is not to be missed!
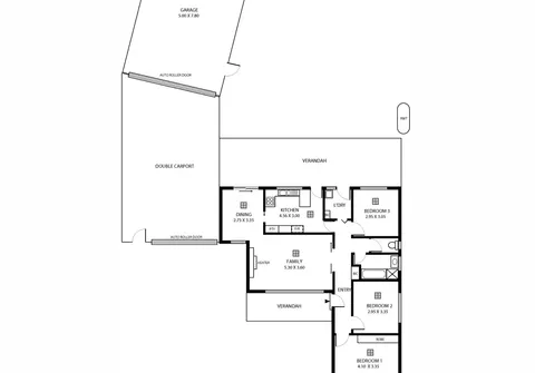
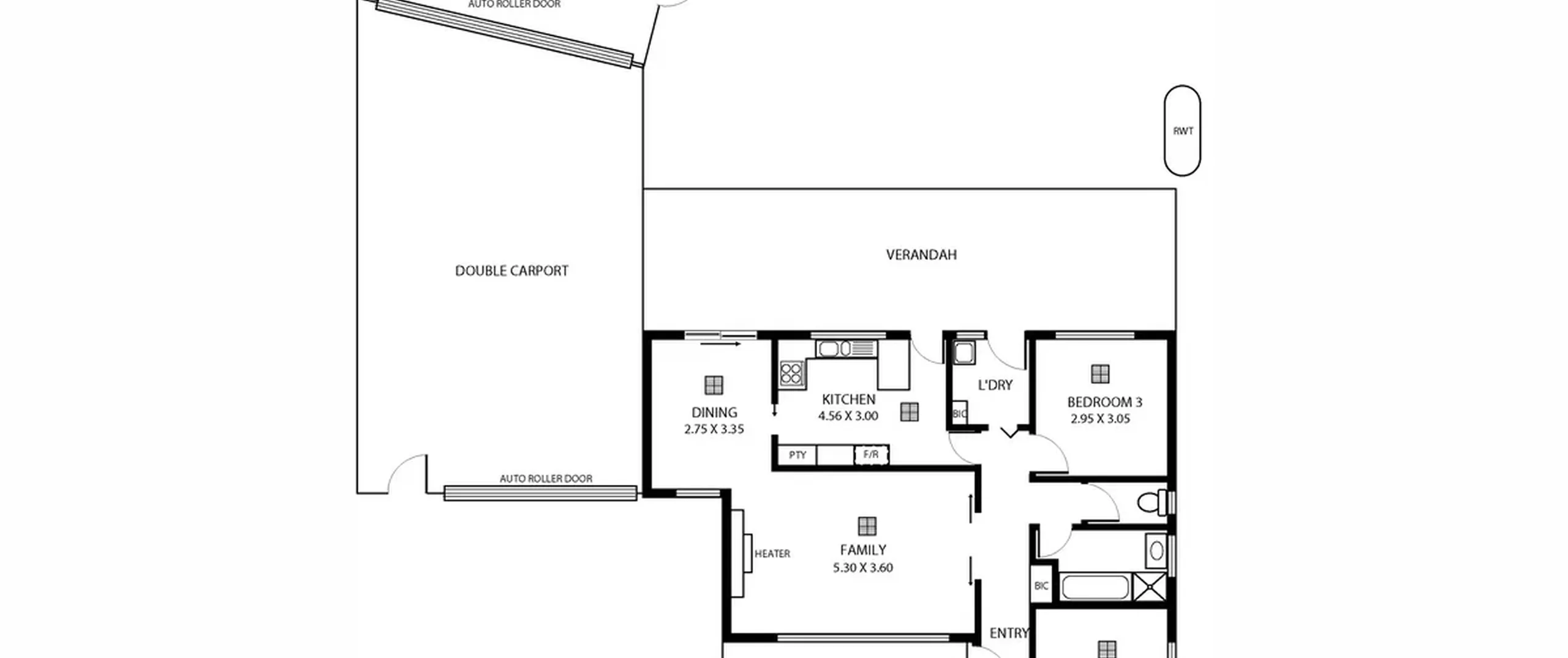
Features that make this home special:
- Large master bedroom with built-in robe
- Good sized bedrooms 2 and 3
- Light filled family room with heater
- Modern kitchen with gas cooktop, stainless steel appliances, and ample bench and cupboard space
- Dining area adjacent kitchen
- Neat and tidy bathroom with separate bath and shower + separate toilet
- Separate laundry
- Ducted evaporative cooling throughout
- Verandah, perfect for outdoor entertaining
- Double carport with automatic roller door and drive through access to secure garage with automatic roller door
- Additional off street parking for 3 vehicles
- Additional storage room
- Secure, low maintenance rear yard with rainwater tanks
- Plantation shutters to windows
- Original Baltic Pine floorboards
Located only a short distance from the open spaces of Linear Park. Only a short drive to a variety of sought after schools. Just minutes away from all facilities including the Newton Village Shopping Centre, gyms, medical facilities, and public transport options including Paradise Interchange. All of this and only 7.2km (approximately) to the Adelaide CBD.
For further information, please contact Annamaria Varelias on 0487 487 383 or 8269 7711 (office).
RLA 200591
