Charming, Convenient and Low Maintenance Living!
What an opportunity to secure this updated courtyard villa along Adelaide's premium city fringe with every cosmopolitan cafe, restaurant and the chic Plant 4 Bowden just out from your doorstep. Effortlessly blending period charm with contemporary style and impeccably presented, this exceptional dwelling offers a superb opportunity into a suburban lifestyle rarely found so close to the city on a low maintenance 205sqm (approximate) allotment.
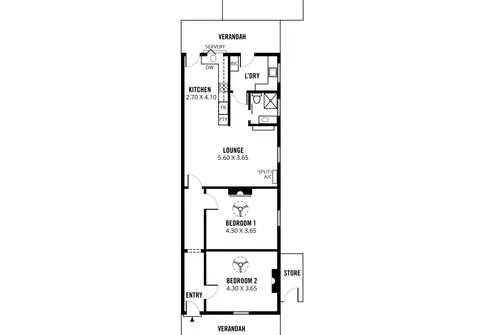
Featuring stunning floorboards to the hallway and bedrooms, feature fireplaces, 3.4m (approximately) high ceilings and a beautifully designed servery from the kitchen to the outdoor area.
Perfect for professional couples, downsizers and investors with only a short commute by foot, by car, or public transport to Adelaide's CBD - bus stops only a 2 minute walk away.
Features that make this home special:
- 2 generous sized bedrooms, both with feature fireplaces and ceiling fans
- Light filled, spacious open plan living and kitchen area with a split system air conditioner, perfect for entertaining with friends and family
- Modern kitchen with stainless steel appliances, dishwasher, gas cooktop, mirrored splashback and ample cupboard space
- Neat and tidy main bathroom
- Separate laundry with access to rear yard
- Beautiful low maintenance rear yard with verandah, built-in seating and garden bed
- Secure, fully fenced front and rear yard
- Single carport with roller door
- Storage shed at the side of the property
Brompton really is all about location, location, location with easy access to:
- Great, varied shopping including local Foodland, IGA Plant 4, Arndale Shopping Centre, Churchill Centre and Costco
- The delightful North Adelaide and Prospect Village with further abundant dining and nightlife
- Local private and public schools including Prospect Primary, Brompton Primary and St Margaret Mary's School.
- Adelaide Aquatic Centre
- Only 4.5kms (approximately) to the CBD as well as Adelaide Oval, Adelaide Entertainment Centre and Coopers Stadium only a stroll away for year round local entertainment.
For further information, please contact Mark Fricker on 0413 000 845 or 8269 7711 (office).
RLA 200591
