Low Maintenance Living!
This neat, well maintained unit is set within a quiet group of 4 and is located at the City end of Broadview (immediately adjacent Collinswood). In a street filled with character Tudor style homes and period Bungalows it is a location that is hard to beat!
Offering an entry level purchase price to this fantastic City fringe location the unit is absolutely ideal for first home buyers or those looking to downsize to enjoy all the lifestyle benefits of this great area. With public transport within a short walk and easy access to the CBD the property will also appeal to students seeking a base close to Universities and Colleges. Equally, investors will also see the potential to secure a quality tenant and take advantage of the area's excellent historic capital growth and great potential rental yield.
Features that make this home special:
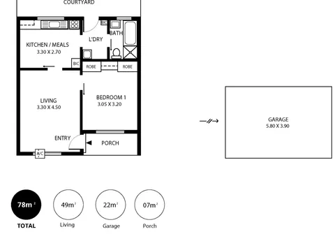
- Spacious master bedroom with built-in robes
- Lounge with window mounted, reverse cycle air conditioner
- Well-appointed eat in kitchen
- Neat and tidy bathroom with separate bath and shower
- Separate laundry
- Allocated car parking space
With so many nearby facilities including great public transport, parks and shopping hubs you really are spoilt for choice. Close proximity to the fabulous Prospect Road cafe strip and Nova Cinema. The CBD and North Adelaide are both less than 5km away (approximately) as well as the fabulous Riverbank Precinct including Adelaide Oval being just minutes up the road, providing a lifestyle that is hard to match.
Do not miss out on this opportunity!
For further information please contact Paul McIntosh on 0447 555 870 or Paul Lukeman on 0427 273 590 or 8269 7711 (office).
RLA 200591
