Family Sized Bungalow
This large 4 bedroom home represents a fantastic opportunity for those buyers who have been looking to purchase a quality property in this exciting and in demand suburb. A genuine stone fronted bungalow, it has great street appeal and upon stepping inside offers a mixture of formal and casual living areas through a sizeable rear extension.
Situated just off prestigious Galway Avenue and surrounded by other quality homes the generous 864sqm (approximately) block provides room for the children to play, to have a beautiful and productive garden or to make use of the shedding and engage in hobbies.
Features that make this home special;
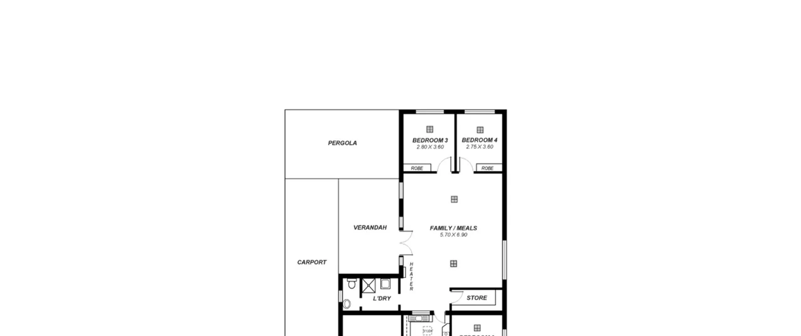
- Master bedroom with built-in robe
- 3 good sized bedrooms, with built-in robes to bedrooms 3 and 4
- Formal lounge room
- Updated kitchen with gas hotplate
- Large formal dining room
- Huge family/meals area at rear of home
- Neat bathroom + valuable second shower and W/C
- Separate laundry
- Ducted evaporative cooling + gas heaters
- Under cover outdoor entertaining area
- Double length carport with auto roller door
- Large shed with power
- National Broadband Network ready
- 864sqm (approximately) block
With only a short walk to multiple transport options and the Broadview Oval sporting and recreation facilities, the location of this home is sensational. Approximately 5kms from the City and within close proximity to some of Adelaide's best public and private schools. Only minutes' drive to Walkerville shopping centre. A short trip to North Adelaide shops, cafs and the fabulous Adelaide Oval entertainment precinct.
For further information please contact Paul McIntosh on 0447 555 870 or 8269 7711 (office).
RLA 200591
The Vendor's Statement (Form 1), the Auction Contract and the Conditions of Sale will be available for perusal by members of the public -
(A) at the office of the agent for at least 3 consecutive business days immediately preceding the auction; and
(B) at the place at which the auction is to be conducted for at least 30 minutes immediately before the auction commences.
