Torrens Titled, Stylish Modern Home!
Securely positioned behind a fence with driveway gate, this modern Torrens Titled home sits on a low maintenance 362sqm block and presents as a fantastic opportunity to secure a property within close proximity to excellent amenities.
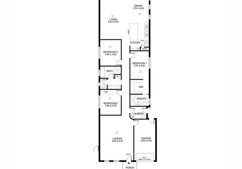
Delivering the bonus of two separate living areas, the 2010 built property includes a formal lounge at the front, together with an open plan living, dining and kitchen area at the rear that seamlessly connects to the alfresco entertaining through full width bi fold doors. A large primary bedroom with huge walk-in robe and ensuite, good sized bedroom 2 and 3 and a garage with auto panel lift door and direct entry to the home completes the offering.
Well maintained throughout, it is currently leased until October 2025 to a high-quality tenant and represents an excellent investment. Equally upon the end of lease there is an opportunity to move in and take full advantage the great location and the lifestyle it offers.
Features that make this home special:
- Primary bedroom with walk-in robe and ensuite
- Two additional bedrooms; bedroom two with built-in robe
- Valuable second lounge room
- Stunning open plan living, dining and kitchen area with seamless connection to the outdoor entertaining area
- Contemporary kitchen with puratap, gas cooktop, dishwasher and island breakfast bar
- Modern three-way bathroom with separate bath and shower featuring floor to ceiling tiles
- Separate laundry with external access
- Ducted air-conditioning
- Alfresco with ceiling fan, perfect for outdoor entertaining
- Spacious lawn area for the kids and pets to enjoy
- Single garage with internal and external access and automatic panel lift door
- 362sqm low maintenance block (approximately)
- 5.9kw solar panel
- Currently tenanted for $630/week until October 2025
Close to all suburban amenities. Greenacres and Northpark Shopping Centres, Regency Plaza and Sefton Plaza are all close by for your weekly shopping requirements, and local schools such as Prospect North Primary, Our Lady of the Sacred Heart School, Enfield Primary and Hampstead Primary are all easily accessed in the immediate area. Several transport options are just a short walk away.
All information contained herewith, including but not limited to the general property description, price and the address, is provided to Boffo Real Estate by third parties. We have obtained this information from sources we believe to be reliable; however, we have not verified and do not guarantee its accuracy. The information contained should not be relied upon and you should make your own enquiries and seek advice in respect of this property or any property on this website.
Looking to purchase this property as an investment? Speak to our Property Management team to see how we can assist.
RLA 313174
