853sqm Prime Land with 37.23m Frontage
What an exciting parcel of land!
On offer here is 853sqm of prime land featuring a 37.23m frontage (both approximate), all within a tightly held corner of Broadview that is highly prized due to immediate proximity to Collinswood and Nailsworth. Full of potential, various options exist for buyers.
A large solid brick family home currently occupies the site. Consisting of 4 bedrooms and 2 bathrooms it could be updated throughout to create a very comfortable home with genuine space in a great near City location. Currently tenanted under a fixed term lease until 14/9/23 at $460 per week, the property is also an excellent ready-made investment property in an area that has achieved strong historical capital growth.
However many buyers will also be looking at this as a development opportunity or as a site to build a dream home (both subject to planning consents). Located within the Prospect Council area, this is the perfect time to consult with your builder about maximising the site. Please call for a copy of the Form 1 including Certificate of Title.
Features that make this property special:
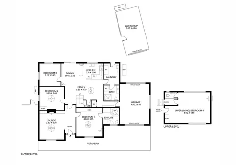
- 853sqm triangular block with 37.23m frontage (both approximate)
- Master bedroom with ensuite, built-in robe, ceiling fan and wall air conditioning unit
- Bedrooms 2 and 3 both of good-size, bedroom 2 with ceiling fan and built-in robe
- 4th bedroom on the upper level with built-in robe, powder room and air conditioning unit
- Lounge with ceiling fan and fireplace
- Practical kitchen with abundance of cupboard and storage space, complete with air conditioning unit
- Open-plan dining and family room with ceiling fan, storage room and built-in cupboard
- Expansive backyard
- Tool shed
- Detached workshop with roller door and external access
- 2x rainwater tank
- Garage with roller door, internal access and external access through additional roller door
- Currently tenanted at $460.00 per week until 14/09/2023
Within a short drive to all of the restaurants and cafes that Cosmopolitan Prospect Road has to offer. Easy walk to the bus, a full range of sporting facilities including Broadview Oval and beautiful parks. Only a few minutes' drive to multiple shopping centres including the Walkerville centre, Sefton Plaza and Northpark Shopping Centre. Close proximity to some of Adelaide’s best public and private schools. All this and only 5kms (approximately) to the City, North Adelaide shops, cafes, restaurants and to the Adelaide Oval precinct.
For further information please contact Paul McIntosh on 0447 555 870 or 8269 7711 (office).
All information contained herewith, including but not limited to the general property description, price and the address, is provided to Boffo Real Estate by third parties. We have obtained this information from sources we believe to be reliable; however, we have not verified and do not guarantee its accuracy. The information contained should not be relied upon and you should make your own enquiries and seek advice in respect of this property or any property on this website.
RLA 313174
