Character Bungalow With Space to Live and Play!
$895,000 - $950,000 Offers Close by 12pm Monday 19th December 2022 (Unless Sold Prior)!
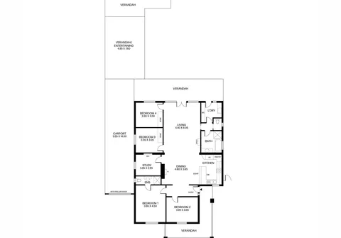
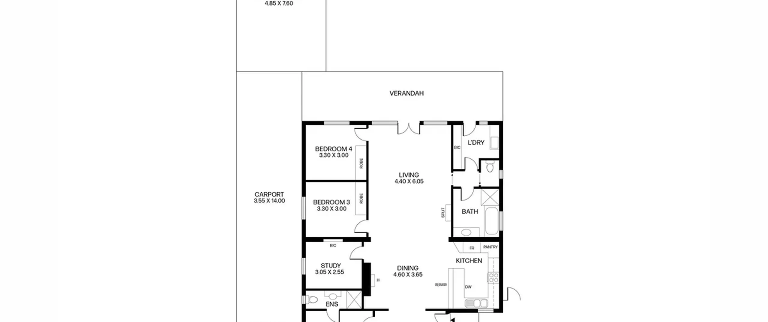
This character bungalow will immediately impress with its versatile floor plan, providing generous accommodation including options for large families, multi-generational families, those with older children or for buyers who are simply looking for the benefits that genuine space provides.
Consisting of 5 good sized bedrooms and potential for a 6th bedroom if required, buyers will appreciate all the aspects associated with a character home such as ornate ceilings, timber floors and leadlight windows, all situated at the City end of this family friendly suburb. On a generous 671sqm (approximate) block there is room to spread out and enjoy a wonderful lifestyle.
Be impressed by a spacious dining and living room that opens out through French doors to a fully fenced rear yard, that is perfect for children or pets to run free. A pitched roof undercover entertaining space, triple length carport with auto roller door and garden shed are complimented by the detached bedroom with ensuite that would also serve well as a games/rumpus room or home studio.
Features that make this home special:
- Master bedroom with ensuite bathroom
- 3 additional bedrooms under main roof, bedrooms 3 and 4 with built-in robes
- Separate study with built-in cupboards (or 6th bedroom)
- Large detached 5th bedroom with ensuite bathroom (or games/rumpus room/studio)
- Living room with French doors
- Timber kitchen with Asko dishwasher and gas cooktop
- Family sized bathroom with separate bath and shower
- Separate toilet
- Polished timber flooring throughout
- Ceiling roses and leadlight windows
- Feature gas fireplace with timber mantle
- Security system
- Fibre to the home NBN
- Split system air conditioner
- Instant gas hot water system
- Separate laundry
- Extensive outdoor entertaining area with pitched roof verandah
- Triple length carport with automatic roller door
- Garden shed, chook shed and raised garden beds
- Beautifully landscaped fully fenced front gardens with gated driveway for additional off-street parking
- 671sqm block (approximate)
- Zoned to Nailsworth Primary School
- Close proximity to quality private schools
- Minutes’ walk to Broadview Oval sporting and leisure precinct
With only a short walk to multiple transport options, the location of this home is sensational. Approximately 5kms from the City. Only minutes' drive to Walkerville shopping centre. A short trip to North Adelaide shops, cafes and the fabulous Adelaide Oval entertainment precinct.
For further information please contact Paul McIntosh on 0447 555 870 or 8269 7711 (office).
All information provided has been obtained from sources we believe to be accurate, however, we cannot provide any guarantee and we accept no liability for any errors or omissions (including but not limited to a property's land size, floor plans and size, building age and condition). Interested parties should make their own inquiries and obtain their own legal advice.
RLA 313174
