5 Genuine Bedrooms. 724sqm Traditional Sized Allotment!
Calling all families. Welcome home!
This sensational 5 bedroom property represents an outstanding opportunity for families who have been seeking the perfect combination of a genuinely large living space coupled with a traditional sized 724sqm (approximate) allotment that provides plenty of room to both live and play. Situated in a great near City location this one is sure to capture your attention!
A marquee property in the local area due to its magnificent street appeal, there is a beautiful integration of modern convenience with character charm throughout the home. Upon entry you will be drawn to the stained-glass windows, classical high ceilings and beautiful polished hardwood flooring underfoot. This then takes you to an open plan living space with large stylish kitchen and lounge room with feature gas heater and sliding doors that flow out to an impressive outdoor entertaining area.
Offering five bedrooms over 2 levels with a versatile sixth bedroom/study. Two well equipped bathrooms, grand dining room and a 2nd living space upstairs with beautiful views of the Adelaide Hills, means there is room for everyone. Outside a salt water inground swimming pool, gas heated spa and large manicured gardens give you the benefit of resort style living at home.
Located on one of the most popular streets in the area and surrounded by other quality homes, this is one not to be missed!
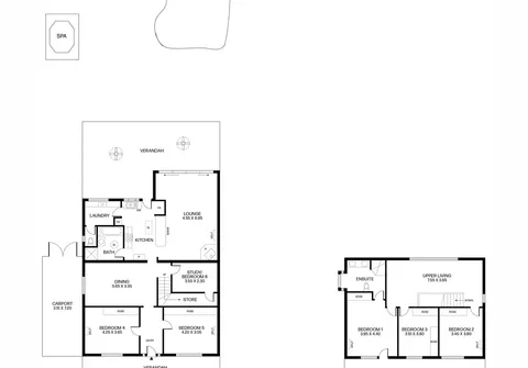
Lower level comprising of:
- Light filled lounge with feature gas fire and sliding door to outdoor entertaining
- Gracious dining room with polished hardwood flooring underfoot
- Large kitchen with built-in oven and microwave, complete with dishwasher
- Separate laundry with convenient separate toilet
- Luxurious and modern main bathroom with separate shower and bath
- Generously sized bedroom 4 and 5 both complete with built in robes and split system air-conditioning
- Versatile 6th bedroom or study with access to under stair storage
Upper level comprising of:
- Family room with views to the Adelaide Hills
- Large balcony off bedroom 1, 2 and 3 provides a great spot to enjoy the sunrise and a morning coffee
- Bedroom 1 of generous size, complete with robe, ensuite split system air-conditioning
- Bedrooms 2 and 3 both equipped with built-in robes and bedroom 2 complete with split system air-conditioning
Outside:
- Pitched roof verandah complete with two ceiling fans provides the perfect space for outdoor entertaining
- Sparkling inground salt water swimming pool
- Gas heated spa
- Carport
- Garden shed
- Fully fenced rear yard
- 724sqm (approximate) allotment
Located conveniently close to all suburban amenities and set amongst a vibrant family friendly local community. Greenacres and Northpark Shopping Centres, Regency Plaza and Sefton Plaza are all close by for your weekly shopping requirements, and local schools such as Prospect North Primary, Our Lady of the Sacred Heart School, Enfield Primary and Hampstead Primary are all easily accessed in the immediate area. Several transport options are just a short walk away.
For further information please contact Paul McIntosh on 0447 555 870 or 8269 7711 (office).
All information provided has been obtained from sources we believe to be accurate, however, we cannot provide any guarantee and we accept no liability for any errors or omissions (including but not limited to a property's land size, floor plans and size, building age and condition). Interested parties should make their own inquiries and obtain their own legal advice.
The Vendor's Statement (Form 1), the Auction Contract and the Conditions of Sale will be available for perusal by members of the public - (A) at our office located at 78-80 North East Road, Walkerville for at least 3 consecutive business days immediately preceding the auction; and (B) at the place at which the auction is to be conducted for at least 30 minutes immediately before the auction commences.
RLA 313174
