Now Here’s Potential!
This solid brick charmer stands proud on a large 760sqm (approximate) block and offers endless future potential for the new owner. You might look to make some cosmetic upgrades and add significant value over time or capitalise on the generous 19.2m wide frontage (approximate) to build a dream home or through a potential subdivision (both subject to consents). The choice is yours!
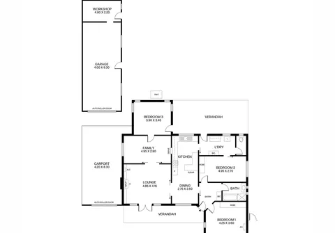
Providing 3 bedrooms and two living areas the home suits those buyers wanting to live in a near City location while having all the benefits of a traditional sized block. With room for kids to play and a great, solid brick garage measuring 4m x 9m (approximate) that could be used for vehicle storage, as a studio for hobbies or as a games room, this type of home is becoming harder and harder to find in the area.
Of course 760sqm (approximate) of land with a 19.2m wide frontage (approximate) located in a street surrounded by other quality homes speaks for itself. In the Port Adelaide Enfield Council area and zoned as General Neighbourhood it offers exciting options. Call now for a copy of the Certificate of Title.
Features that make this home special:
- 3 spacious bedrooms, bedroom 1 and 2 with built-in robes, bedroom 1 with wall unit air conditioner
- Generous lounge room with split system air conditioner
- Valuable second living
- Kitchen with breakfast bar, servery to family room and ample bench and cupboard space
- Original bathroom with separate bath and shower + separate toilet for convenience
- Separate laundry with access to rear yard
- Verandah, perfect for outdoor entertaining
- Expansive rear yard
- Single carport with automatic roller door
- Single garage with automatic roller door and workshop area
- Rainwater tank
Located conveniently close to all suburban amenities and set amongst a vibrant family friendly local community. Greenacres and Northpark Shopping Centres, Regency Plaza and Sefton Plaza are all close by for your weekly shopping requirements, and local schools such as Prospect North Primary, Our Lady of the Sacred Heart School, Enfield Primary and Hampstead Primary are all easily accessed in the immediate area. Several transport options are just a short walk away.
For further information please contact Paul McIntosh on 0447 555 870 or 8269 7711 (office).
RLA 200591
The Vendor's Statement (Form 1), the Auction Contract and the Conditions of Sale will be available for perusal by members of the public -
(A) at our office located at 78-80 North East Road, Walkerville for at least 3 consecutive business days immediately preceding the auction; and
(B) at the place at which the auction is to be conducted for at least 30 minutes immediately before the auction commences.
