Value Seeking Buyers Rejoice! Your Private Sanctuary On 450sqm Corner Allotment
Wow, a rare opportunity for savvy buyers seeking their own piece of Broadview without the hefty price tag this highly sought after suburb typically demands. A feeling of tranquillity greets you as you step inside the high gates and into the landscaped front gardens. A sensational area of the property, tailor made for summer time entertaining with family and friends.
Whether you are looking for an entry level home to live in within this in demand area, wanting to downsize close to outstanding local amenities, or for an investment property that has all the key ingredients for future growth, then this is the one for you! Torrens Titled, forget about buying a townhouse or unit with all those never ending community/strata fees!
Set on a 450sqm (approximate) corner block with beautiful gardens, this home is a nature lover’s delight and is sure to impress from the moment you see it!
Offering unbeatable value for money, this property needs to be added to your inspection list!
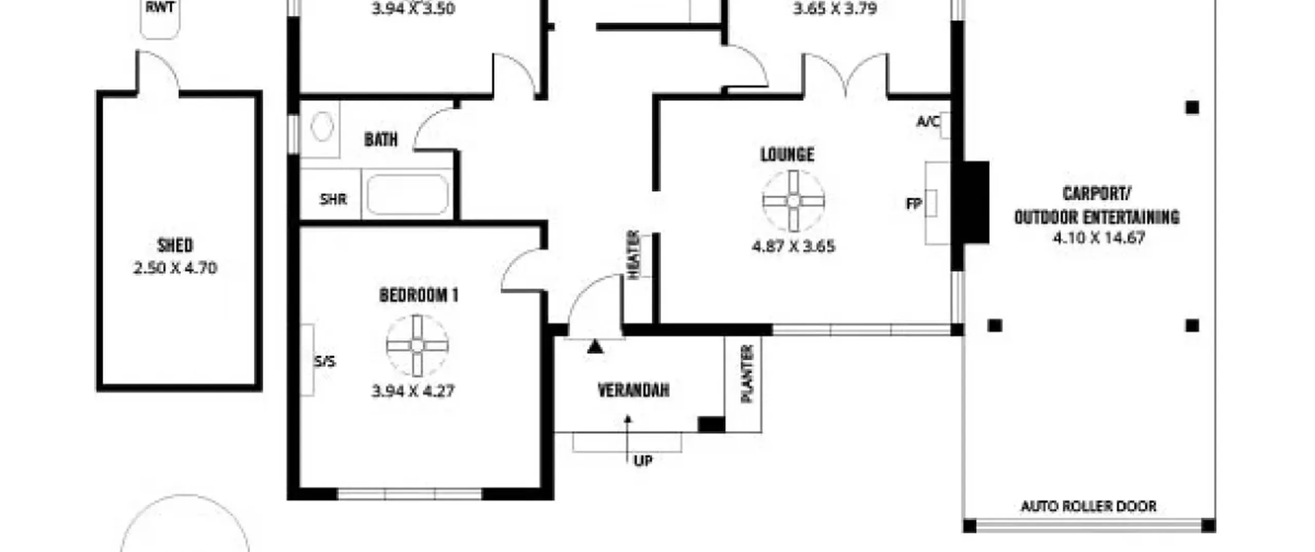
Features that make this home special:
- Generous sized master bedroom with ceiling fan and split system air conditioner
- Generous sized bedroom 2 with ceiling fan
- Good sized bedroom 3/study with ceiling fan
- Beautiful timber floors throughout
- Light filled lounge with ceiling fan, air conditioner and feature fireplace
- Eat-in timber kitchen with stainless steel appliances, gas cooktop and dishwasher
- Neat and tidy bathroom with separate bath and shower
- Separate laundry incorporating toilet
- Massive carport/outdoor entertaining area
- Fully fenced yard with manicured gardens and shed
Within a short drive to all of the restaurants and cafes that Cosmopolitan Prospect Road has to offer. Easy walk to the bus, a full range of sporting facilities including Broadview Oval and beautiful parks. Only a few minutes' drive to multiple shopping centres including the Walkerville centre, Sefton Plaza and Northpark Shopping Centres. All this and only 5kms (approximately) to the City, North Adelaide shops, cafes, restaurants and to the Adelaide Oval precinct.
Will this be your new home?
For further information please contact Gabriel Titmarsh on 0497 191 000 or 8269 7711 (office)
RLA 200591
The Vendor's Statement (Form 1), the Auction Contract and the Conditions of Sale will be available for perusal by members of the public -
(A) at our office located at 87 North East Road, Collinswood for at least 3 consecutive business days immediately preceding the auction; and
(B) at the place at which the auction is to be conducted for at least 30 minutes immediately before the auction commences.
