Perfect Family Living in Brahma Lodge
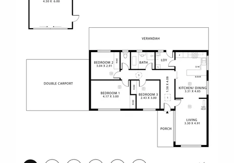
Indulge in easy-care living with this spacious home set on a large 649sqm (approximate) allotment. The layout offers three bedrooms and one bathroom, plus a light-filled lounge room and a quality kitchen and dining area ready for family dinners.
When it’s time to relax, you can gather with family and friends under the back verandah as you fire up the BBQ and watch the kids and pets play in the large, fenced yard with established gardens.
Your new home is set on a quiet road with a double carport and off-street parking for multiple cars behind a secure gate. Easy-care gardens surround the home and you are also treated to a central location within close proximity to Brahma Lodge Primary School and nearby shops, parks and public transport.
Features that make this home special:
- Three good sized bedrooms, all with built-in robes
- Light filled living area adjoining the kitchen/dining, complete with gas heater and charming ornate ceiling rose
- Timeless kitchen complete with an abundance of cupboard and bench space and stainless steel appliances including dishwasher and gas cooktop
- Bright main bathroom with separate bath and shower
- Separate toilet
- Convenient internal laundry with linen storage and external access
- Expansive verandah entertaining area
- Fully fenced yard with shed and low maintenance gardens
- Double width carport with large driveway for additional off-street parking behind secure gate
Conveniently located in close proximity to Brahma Lodge Primary School while Brahma Lodge Oval is situated directly adjacent the home. A short drive will take you to the nearby Parabanks Shopping Centre or the Salisbury train station. All of this easy access to the Adelaide CBD via the Salisbury Highway.
For further information please contact Joe Zollo on 0455 933 439, John Ktoris on 0438 945 704 or 8269 7711 (office).
All information provided has been obtained from sources we believe to be accurate, however, we cannot provide any guarantee and we accept no liability for any errors or omissions (including but not limited to a property's land size, floor plans and size, building age and condition). Interested parties should make their own inquiries and obtain their own legal advice.
The Vendor's Statement (Form 1), the Auction Contract and the Conditions of Sale will be available for perusal by members of the public - (A) at our office located at 78-80 North East Road, Walkerville for at least 3 consecutive business days immediately preceding the auction; and (B) at the place at which the auction is to be conducted for at least 30 minutes immediately before the auction commences.
RLA 313174
