Exciting Opportunity in the Vibrant Suburb of Bowden
Set on a 426sqm (approximate) allotment with a 14.7m (approximate) frontage in the vibrant, growing suburb of Bowden, this two storey home provides an exciting opportunity for astute buyers to renovate and add personal touches, redevelop (subject to council consent), and investors looking to add to their current portfolio. This rare find in a prime location within close proximity to all amenities sits strategically amongst other quality homes.
Features that make this home special:
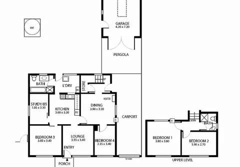
- Large bedrooms 1 and 2, located on upper level
- Bathroom with shower located on upper level
- Good sized bedrooms 3 and 4
- Light filled lounge
- Functional kitchen with gas cooktop
- Formal dining room
- Study/bedroom 5
- Main bathroom with separate bath and shower
- Separate laundry
- Additional store room
- Pergola for outdoor entertaining
- Paved rear yard with rainwater tank and shed
- Carport with drive through access to garage
Perfectly located in convenient walking distance to Bowden Town Square and Plant 4 markets. Convenient public transport links, lush gardens and parklands with public art and BBQ's, retail precincts, restaurants and cafes are all close by to this sustainable and connected community. All this and 5km (approximately) to the Adelaide CBD, UniSA and the new Royal Adelaide Hospital.
For further information please contact Darren Cowey on 0439 160 161 or 8269 7711 (office).
RLA 200591
The Vendor's Statement (Form 1), the Auction Contract and the Conditions of Sale will be available for perusal by members of the public -
(A) at our office located at 87 North East Road, Collinswood for at least 3 consecutive business days immediately preceding the auction; and
(B) at the place at which the auction is to be conducted for at least 30 minutes immediately before the auction commences.
