Modern Townhouse Living!
Built in 2014, this beautifully presented and well positioned three bedroom Torrens Titled townhouse is located in the heart of Blakeview. Whether you are looking for your first home, forever home or an easy-care investment opportunity, this low maintenance townhouse will accommodate all your needs.
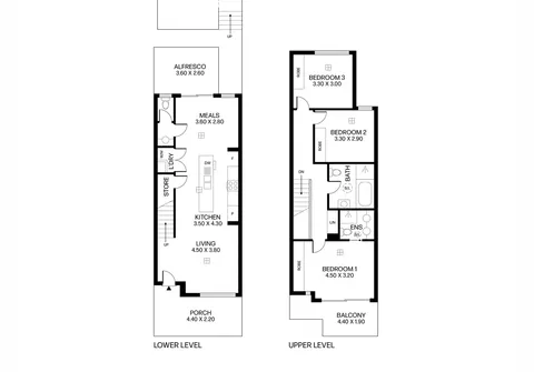
The layout spans two levels with three spacious bedrooms and 2.5 bathrooms on offer. The living space is bright and open-planned with quality floating floorboards and reverse cycle ducted air-conditioning for complete comfort. In the kitchen, you are treated to gas cooking, ample cupboard space, double sink and dishwasher. The European laundry, valuable third toilet and under stair storage complete the internal layout. Outside is the private alfresco area, which is directly linked to the secure single carport accessible from the rear Barklea Lane.
All three bedrooms are set on the upper level with the master offering a built-in robe, ensuite and private balcony. Bedrooms two and three include valuable built in robes and are serviced by a central bathroom with bathtub, while the landing provides convenient linen storage space. Currently tenanted on a periodic lease for $345 per week.
Upper level comprising of:
- Master bedroom with large built in robe, ensuite and private balcony
- Large bedrooms two and three with built in robes
- Sparkling, central main bathroom
- Ducted reverse cycle air conditioning
Lower level comprising of:
- Spacious open plan living/dining/kitchen flowing effortlessly to the rear alfresco through sliding doors
- Kitchen features quality stainless steel appliances, Technika dishwasher, gas cooktop and double sink
- Valuable European laundry
- Convenient powder room
- Under stair storage cupboard
- Single carport accessed via rear laneway with automatic roller door
- Ducted reverse cycle air conditioning
- Private rear alfresco area with clothesline
Located in close proximity to Blakes Crossing Shopping Centre, Munno Para Shopping City and the Elizabeth City Centre; as well as parks, schools and public transport options. All of this and easy access to Main North Road and the Northern Expressway!
For further information please contact Lidija Kies on 0477 779 579, Allison Bartlett on 0456 019 292 or 8269 7711 (office).
All information provided has been obtained from sources we believe to be accurate, however, we cannot provide any guarantee and we accept no liability for any errors or omissions (including but not limited to a property's land size, floor plans and size, building age and condition). Interested parties should make their own inquiries and obtain their own legal advice.
RLA 313174
