Charming Family Home in the Heart of Blakeview
Nestled on a quiet street in the heart of Blakeview, this well-presented three-bedroom home presents an outstanding opportunity for investors. With a tenancy in place to 29th Oct 2026, this ideally located home is just moments from Hayfield Reserve and the popular Blakes Crossing Shopping Centre, it combines everyday convenience with a peaceful setting.
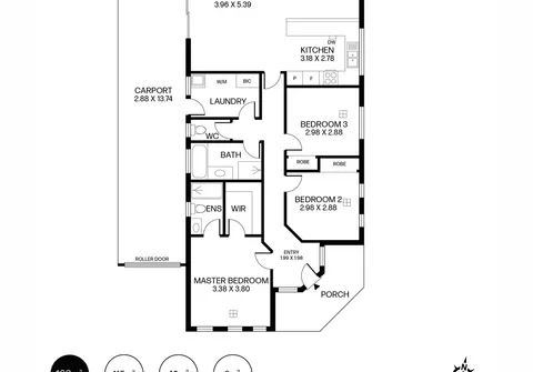
Inside, the home features a spacious master bedroom with a walk-in robe and ensuite, along with two additional bedrooms with built-in robes. The light-filled open-plan kitchen, meals and family area forms the heart of the home, perfect for entertaining or relaxing with family. The well-appointed kitchen includes stainless steel appliances and a convenient breakfast bar. Step outside to the low-maintenance backyard, ideal for weekend gatherings.
Features that make this home special:
- Spacious master bedroom with walk-in robe and ensuite
- Good-sized bedroom 2 and 3 with built-in robes
- Light-filled open plan kitchen, meals and family area
- Well-appointed kitchen featuring ample storage, quality stainless steel appliances including a gas cooktop, oven, dishwasher and a convenient breakfast bar
- Ducted heating and cooling
- 6.6kw Solar
- Main bathroom with both shower and bath
- Practical laundry with linen cupboard and external access to carport
- Triple-length carport with roller door, which can also be utilised as an entertaining space
- Low maintenance front and rear yards
- Currently tenanted for $500 per week until 29th October 2026
Situated in the vibrant, family-friendly suburb of Blakeview, this home offers easy access to everything you need. Excellent schools are nearby, public transport is convenient and a range of shopping destinations, including Blakes Crossing, Munno Para and Elizabeth City Centre are just minutes away.
All information contained herewith, including but not limited to the general property description, price and the address, is provided to Boffo Real Estate by third parties. We have obtained this information from sources we believe to be reliable; however, we have not verified and do not guarantee its accuracy. The information contained herewith should not be relied upon and you should make your own enquiries and seek advice in respect of this property or any property on this website.
Looking to purchase this property as an investment? Speak to our Property Management team to see how we can assist.
RLA 313174
