Prepare to be Impressed!
Perfectly positioned in this hidden jewel of the Western suburbs amongst other quality period homes, this 1930’s fully renovated bungalow set on approximately 785sqm offers opulent family living. All the character features including ornate ceilings and polished floorboards have been retained with the addition of modern fixtures and fittings.
Providing year round entertaining options with perfect natural flow from the internal living areas to the impressive outdoor entertaining area which overlooks the lovely manicured gardens this picture perfect home is both appealing and highly desirable.
Features that make this home special:
- Large entry with feature fretwork
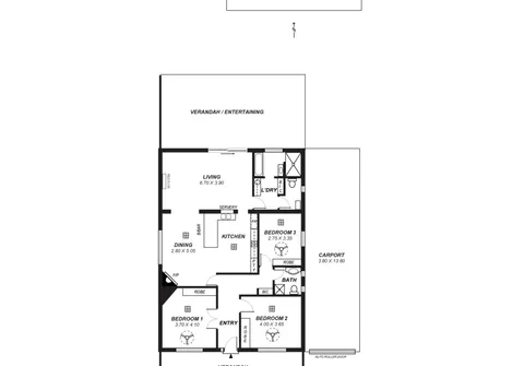
- 3 spacious bedrooms, all with built-in robes and ceiling fans
- Sparkling bathroom adjacent bedrooms 2 and 3
- Light filled living area
- Sleek and stylish kitchen with gas cooktop, breakfast bar and ample bench and cupboard space
- Dining area adjacent kitchen with fireplace and ornate ceiling
- Additional bathroom with separate shower and bath + separate toilet
- Separate laundry with built-in cupboards
- Ducted reverse cycle cooling throughout
- Security system
- Polished floorboards
- Neutral décor
- Expansive undercover outdoor entertaining area
- Manicured gardens
- Vegetable patch, garden shed and rainwater tank
- Large garage/workshop
- Double length carport with automatic roller door
Ideally situated between the city and the beach with easy access to Port Road and Grange Road and located close to all amenities including: Welland Shopping Centre, Woodville Sports Centre and quality public and private schools, this is the perfect place for your family to call home!
For further information please contact Paul McIntosh on 0447 555 870 or 8269 7711 (office).
RLA 265613
The Vendor's Statement (Form 1), the Auction Contract and the Conditions of Sale will be available for perusal by members of the public -
(A) at the office of the agent for at least 3 consecutive business days immediately preceding the auction; and
(B) at the place at which the auction is to be conducted for at least 30 minutes immediately before the auction commences.
