Captivating Colonial
This impeccably presented Australian Colonial style home featuring coach house red tumble bricks and set in a superb verdant garden setting on a generous 688sqm (approximate) corner allotment will instantly appeal to the most astute buyers.
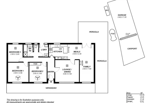
Features that make this home special;
- 3 Spacious bedrooms, with built-in robe to bedroom 2
- Light filled formal living/dining room
- New designer kitchen with glass splashback, Essastone benchtops and ample storage
- Miele appliances to kitchen including Pyrolytic self-cleaning oven, induction cooktop, steam oven and dishwasher
- Separate casual meals area
- Large family room with french doors and gas wall heater
- Generous brick paved outdoor area with vine covered pergola
- Ducted evaporative air conditioning throughout
- Securely fenced front and rear yards
- Lovely manicured gardens
- Lock up garage plus carport
For garden lovers an array of Iceberg and Pierre de Ronsard roses, crab apple trees and numerous natives will delight.
Perfectly located in this sought after foothills location close to excellent private and public schools, transport options, shopping and all facilities plus an abundance of parks and walking trails.
Inspect And Be Impressed!
For further information please contact Geoff Carlaw on 0487 487 383 or 8269 7711 (office).
RLA 265613
The Vendor's Statement (Form 1), the Auction Contract and the Conditions of Sale will be available for perusal by members of the public -
(A) at the office of the agent for at least 3 consecutive business days immediately preceding the auction; and
(B) at the place at which the auction is to be conducted for at least 30 minutes immediately before the auction commences.
