Resort-style Living in Athelstone!
Are you looking for a house that has it all? Your search stops here!
Set on a spacious 922sqm (approximate) allotment at the end of a quiet cul-de-sac amongst other quality homes, this immaculately maintained family home ticks all the boxes.
With its sparkling in-ground swimming pool, multiple outdoor entertaining areas, kids' cubby house, tennis court and spa bath, this home is sure to impress from the moment you see it. Offering an abundance of space that you will want to share with the whole family, this opportunity is not to be missed!
Features that make this home special:
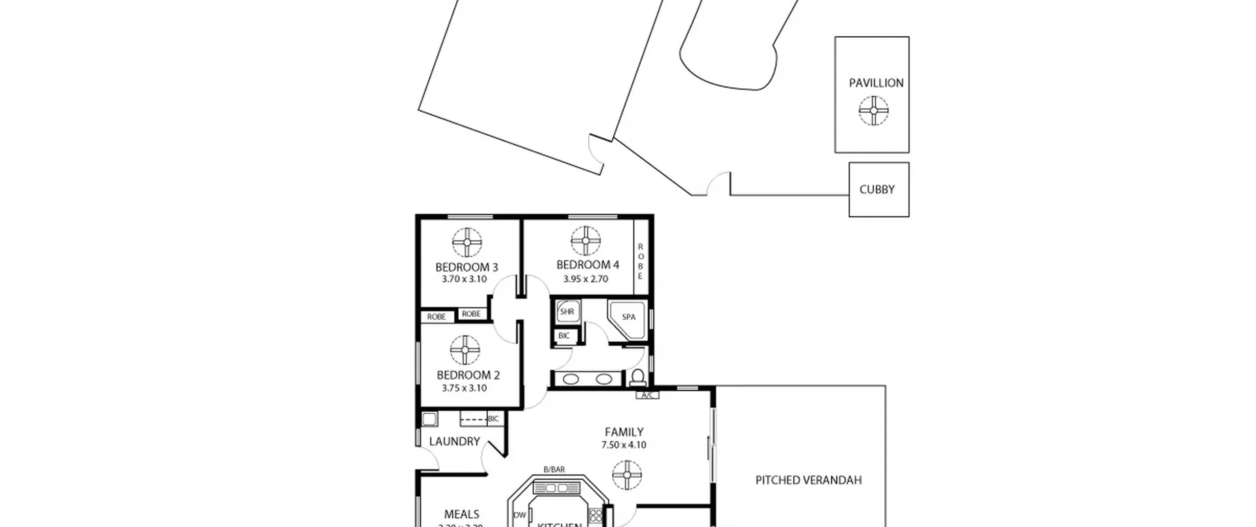
- Master bedroom with ceiling fan, ensuite, walk-in robe and bay windows
- Good sized bedrooms 2, 3 and 4, all with built-in robes and ceiling fans
- Light filled, sunken formal lounge
- Formal dining room
- Open plan family room with air conditioner and ceiling fan
- Modern kitchen with stainless steel appliances, gas cooktop, dishwasher, breakfast bar and walk-in pantry
- Meals area adjacent kitchen
- Luxurious three-way main bathroom with spa bath and dual vanities
- Separate spacious laundry
- Plantation blinds throughout
- Massive pitched-roof verandah, perfect for outdoor entertaining
- Secure rear yard with kids' cubby house
- Stunning in-ground swimming pool with covered pavillion + ceiling fan
- Tennis court with basketball hoop
- Large shed
- Double garage with automatic roller doors and drive through access to rear
Perfectly positioned in the popular suburb of Athelstone, close to Linear Park, Black Hill Conservation Park and Roy Street Reserve. In close proximity to a variety of excellent schools including St Ignatius College, Athelstone School and Thorndon Park Primary School. Only a short distance to Newton Village and Newton Central Shopping Centre. All this and only 11km (approximately) to the Adelaide CBD.
For further information please contact Annamaria Varelias on 0487 487 383 or 8269 7711 (office)
RLA 200591
