Generous Block with Outstanding Potential!
Bursting with potential and boasting a central location, between the sea and the city, this home is a blank canvas ready to be transformed. Renovators and investors alike will appreciate the potential this home has to offer while those with plans for the future will appreciate the generous 603sqm (approximate) block.
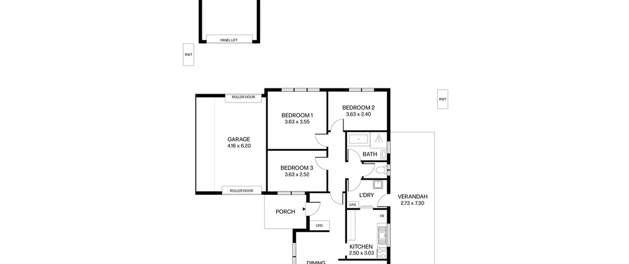
Consisting of three good sized bedrooms, light filled lounge, excellent car accommodation and a sprawling North-facing backyard, allowing you the opportunity to add your personal touch.
The potential really does seem endless with so much space to be utilised whether it be modernising the existing home, extending to create more space, adding a pool or exploring the option to redevelop (All Subject to Council Consent).
Features that make this home special:
- Three good sized bedrooms
- Light-filled lounge and dining room upon entry with a split system air conditioner
- Kitchen with gas cooktop
- Bathroom with bath and shower, and a separate toilet for convenience
- Separate laundry with direct access to rear yard
- Single garage with drive through access to double length garage in rear yard
- Expansive rear yard
- Verandah for outdoor entertaining
- Two rainwater tanks
Superbly located only 10kms (approximately) from the Adelaide CBD and only minutes away from all the shopping and entertainment that Arndale Shopping Centre and Churchill Centre has to offer. Within walking distance to the Regency Park Golf Course, The Parks Recreation and Sports Centre and a variety of local parks. Additionally in close proximity to a variety of excellent public and private schools, including Woodville Gardens School and St Patrick's School.
All information contained herewith, including but not limited to the general property description, price and the address, is provided to Boffo Real Estate by third parties. We have obtained this information from sources we believe to be reliable; however, we have not verified and do not guarantee its accuracy. The information contained should not be relied upon and you should make your own enquiries and seek advice in respect of this property or any property on this website.
RLA 313 174
