Fantastic Family Living or Ideal Investment!
Whether you’re a first-time buyer or a seasoned house hunter, you can’t go past this must-see family home. Bright and spacious with three bedrooms, one bathroom and multiple living spaces, this is a home where you can move, play and entertain.
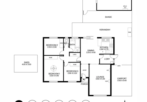
The interior is bright and welcoming with stylish archways joining the lounge room and dining area. The kitchen features timber finishes, a gas cooktop, ample storage and a breakfast bar. All bedrooms include built-in robes and the convenient laundry completes the internal layout. Outside, a covered verandah is ready for summertime entertaining and the huge, lined rumpus room allows for quality downtime.
Extra functional features include gas heating and air-conditioning for added comfort, a shed for storage and rear access to the yard. A 12-panel solar system will appeal to the eco-conscious buyer and your new home is set on a 560sqm (approximate) corner block with a well-fenced backyard ready for the green thumb.
Features that make this home special:
- 3 good sized bedrooms with built in robes, main bedroom includes ceiling fan
- Bright and spacious lounge with gas space heater and air conditioner
- Dining room with glass sliding doors flowing smoothly to outdoor area
- Functional kitchen features gas oven and ample cupboard and bench space
- Large games/rumpus room addition which can be used as an additional bedroom, complete with a ceiling fan and split system reverse cycle air conditioner
- Modern central main bathroom with separate bath and shower
- Convenient separate toilet
- Valuable laundry with external access
- Large rear yard ready to make your own
- Garden shed for added storage
- Paved verandah, perfect for outdoor entertaining
- Single carport with parking space for additional vehicle
- Electric solar system with 12 panels
Please note: All grassed areas for illustration purposes only.
Your new home is located close to a great range of schools and is only moments from retail hubs such as Munno Para Shopping City and Elizabeth City Centre. On the weekends, you can enjoy a round of golf at the nearby Playford Lakes golf course or travel just 40 minutes (approximate) to the CBD via the Northern Expressway.
For further information please contact James Rawkins on 0408 081 826 or 8269 7711 (office).
All information provided has been obtained from sources we believe to be accurate, however, we cannot provide any guarantee and we accept no liability for any errors or omissions (including but not limited to a property's land size, floor plans and size, building age and condition). Interested parties should make their own inquiries and obtain their own legal advice.
RLA 200591
