Easy-care Living in a Family-friendly Pocket of Andrews Farm!
This convenient and low-maintenance home is nestled amongst other quality homes and is sure to attract a wide variety of house-hunters. Investors, first-time buyers, downsizers and young families will be drawn to the central location and contemporary appeal of this property while investors will love the instant rental return with a tenant in place until July 2022.
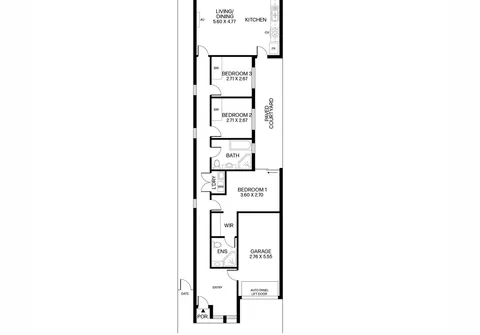
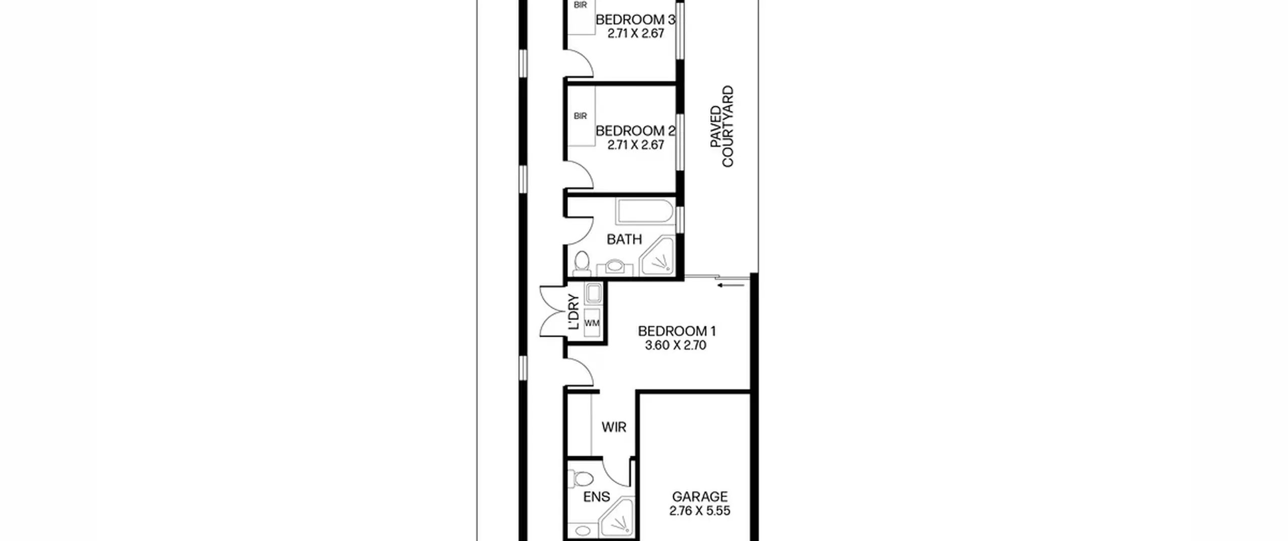
There are three bedrooms and two bathrooms plus multiple outdoor areas and room to entertain guests. The master has a walk-in robe, an ensuite and direct access to a paved courtyard while the guest bedrooms have built-in robes and are serviced by the main bathroom.
Air-conditioning ensures absolute comfort in the open-plan kitchen, living and dining zone which also opens to the rear courtyard where you can host guests.
A compact laundry, an attached single garage and low-maintenance landscaping are just a few of the extra features on offer. You can walk to local parks, playgrounds and the Eyre Village Shopping Centre while schools, train stations and the Munno Para Shopping City are only minutes away.
Features that make this home special:
- Master bedroom with ensuite and walk-in robe
- Bedrooms 2 and 3 both complete with built-in robes
- Neat and tidy kitchen with gas cooktop, dishwasher provision and pantry
- Open plan and light-filled living and dining room with split system air conditioning
- Light-filled bathroom with bath tub + shower
- European laundry
- Paved courtyard
- Single garage with automatic panel lift door and internal access
- Low maintenance front and rear yard
- Currently tenanted for $315.00/week until July 2022
Ideally located close to a variety of schools including Andrews Farm Community Preschool, St. Columbia College, Mark Oliphant College and Adelaide North Special School. All the shopping and entertainment that Munno Para Shopping City and Elizabeth City Centre are only a short drive away or enjoy a round of golf at the nearby Playford Lakes golf course. All this and only 40 minutes (approximately) to the CBD via the Northern Expressway.
For further information please contact James Rawkins on 0408 081 826 or 8269 7711 (office).
All information provided has been obtained from sources we believe to be accurate, however, we cannot provide any guarantee and we accept no liability for any errors or omissions (including but not limited to a property's land size, floor plans and size, building age and condition). Interested parties should make their own inquiries and obtain their own legal advice.
RLA 200591
