Value Buying in Fantastic Area
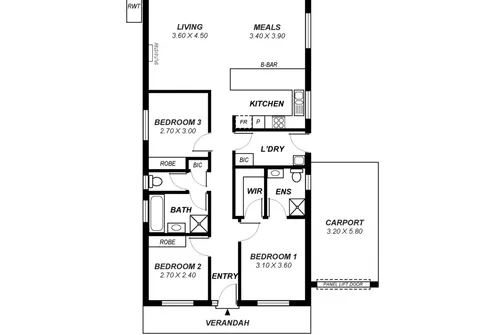
Set amongst other premier properties in a beautifully secluded estate in a friendly neighbourhood, this modern 3 bedroom courtyard home is sure to impress first home buyers, empty nesters and investors alike. Situated on a 310sqm (approximate) block, it is ready for its new owners to move in or rent out, the choice is yours to make!
Features that make this home special:
- Master bedroom with walk-in robe and ensuite
- Bedrooms 2 and 3, both with built-in robes
- Spacious light-filled open plan living/meals area with split system air conditioner
- Modern kitchen with stainless steel appliances, gas cooktop, breakfast bar and ample bench and cupboard space
- Neat and tidy main bathroom with separate bath and shower
- Separate laundry and toilet
- Low maintenance, fully fenced courtyard with patio
- Single secure carport with roller door
Only a few minutes from the new Playford Alive development area, Munno Para Shopping City and parks. Schools, recreational facilities and public transport options are also nearby.
For further information please contact James Rawkins on 0408 081 826 or 8269 7711 (office).
RLA 200591
